3
3
284m2
557m2
Private
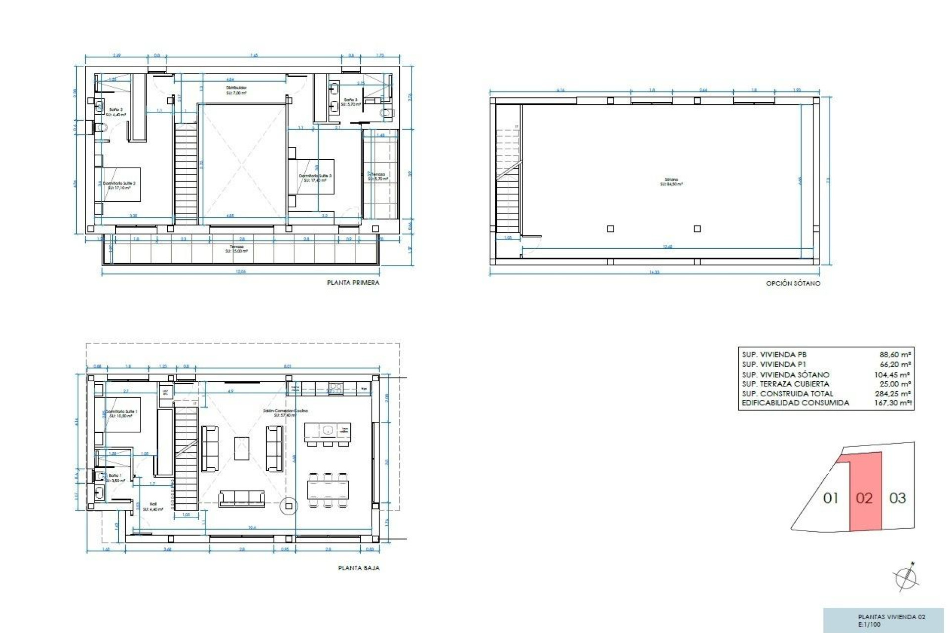
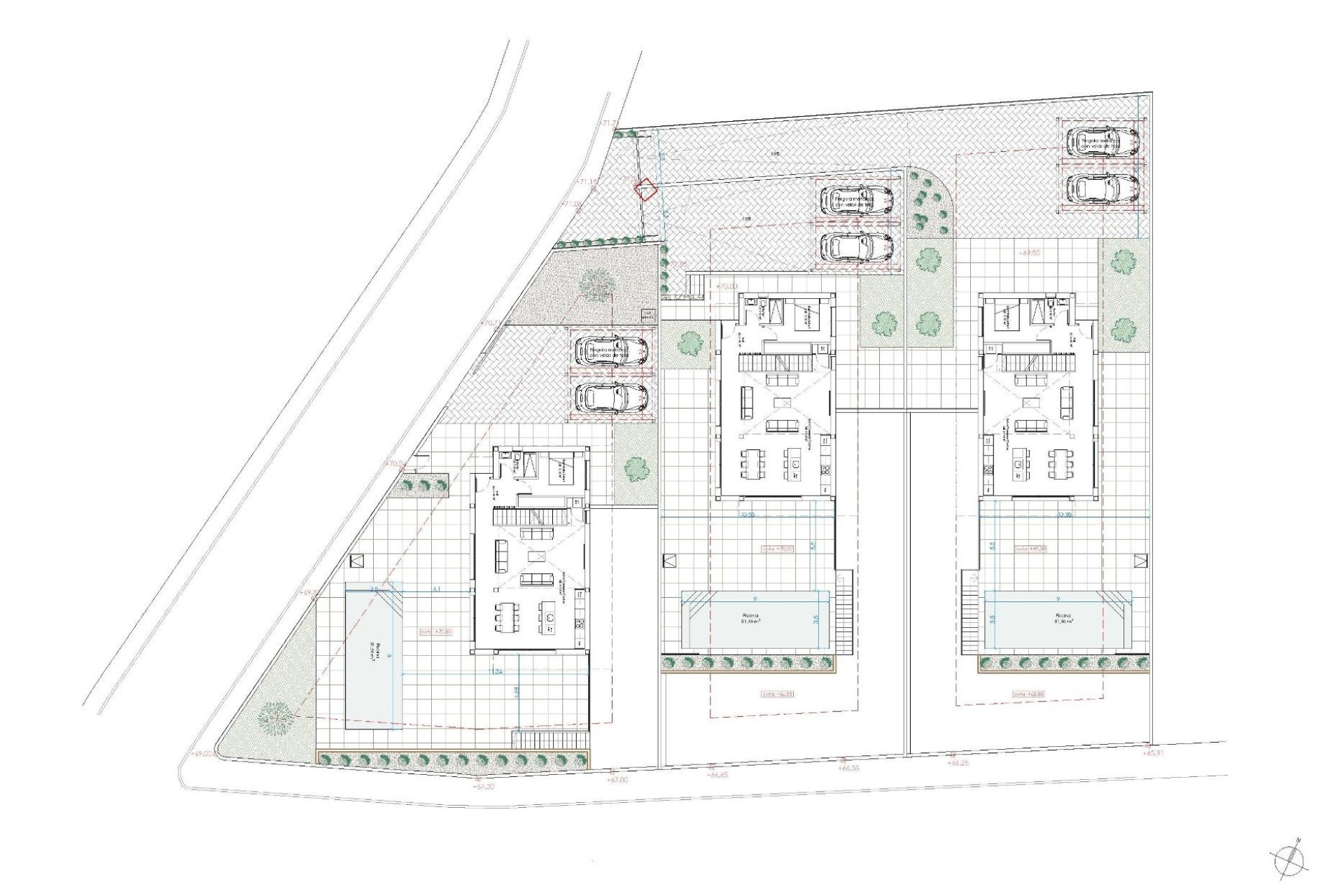
New Build Villa in Rojales – Modern Design and Prime Location Discover this stunning new build villa in Ciudad Quesada, Rojales, designed with a perfect balance of style, comfort, and functionality. Surrounded by nature and close to all essential services, this home is an ideal choice for those seeking quality living in the heart of the Costa Blanca. Spacious Layout with High-End Features This villa has been carefully designed to maximize natural light and open spaces. It includes: A large basement with excellent ventilation and natural light, ideal for multiple uses. Ground floor with a double-height living room, open-plan kitchen with island, one bedroom, and a bathroom. Upper floor with two en-suite bedrooms, each with access to private terraces. The villa also offers a private 9x3.5 m swimming pool, landscaped garden areas, and multiple terraces for outdoor relaxation. Quality Finishes and Modern Comfort Built with premium materials, this property is equipped with: Fully furnished bathrooms with mirrors Ducted air conditioning Underfloor heating in bathrooms Aerothermal hot water system Parking space for several vehicles Prime Location in Rojales Located in the charming town of Rojales, this villa enjoys proximity to essential services such as supermarkets, pharmacies, banks, restaurants, and natural parks. Just 10 minutes from La Marquesa Golf, one of the most prestigious courses in the Costa Blanca, residents can enjoy a top golfing experience surrounded by tradition and quality. Excellent Connectivity and Nearby Attractions Rojales is strategically positioned, offering excellent road connections: La Marquesa Golf – 3 km Beaches of Guardamar del Segura – 8 km Torrevieja – 12 km Alicante Airport – 40 km Murcia Airport – 55 km In addition, the N-332 and AP-7 highways ensure quick access to nearby towns, shopping centers, marinas, and cultural attractions. Make Rojales Your New Home Whether you are looking for a permanent residence, a holiday retreat, or a secure investment, this new build villa in Ciudad Quesada offers everything you need for a Mediterranean lifestyle. Contact us today for more details and to schedule your private viewing.