4
3
208m2
400m2
Privado
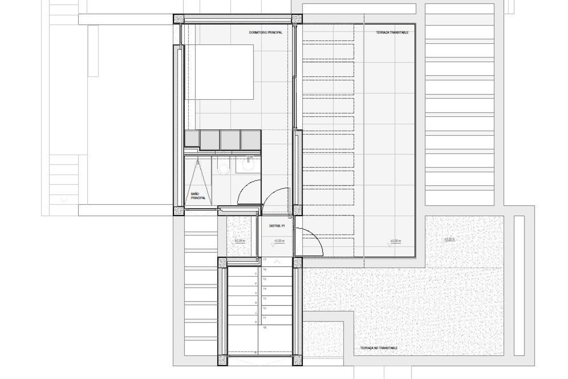
Villa de lujo de nueva construcción con vistas al mar en La Alberca Polop Diseño contemporáneo en un entorno montañoso tranquilo Esta excepcional villa de nueva construcción se encuentra en La Alberca, una tranquila zona residencial en las montañas de Polop. Rodeada de bosques y naturaleza, la propiedad ofrece vistas panorámicas al mar Mediterráneo, las montañas y la histórica ciudad de Polop. Diseñada con elegancia arquitectónica vertical, la villa combina privacidad, funcionalidad y una vida interior y exterior sin fisuras. Polop es un encantador pueblo de la Costa Blanca conocido por su ambiente tradicional y su belleza natural. La villa está cerca de todos los servicios de La Nucia, incluyendo tiendas, restaurantes, centros deportivos y colegios. Las playas y las animadas ciudades costeras como Benidorm y Altea están a solo 15 minutos. Distribución cuidadosamente diseñada en tres niveles La planta principal le da la bienvenida con un vestíbulo de entrada con armario empotrado y aseo para invitados. Este nivel incluye un dormitorio en suite con puertas ventanas elevables de suelo a techo que dan a una terraza lateral privada. La luminosa sala de estar y comedor de planta abierta conecta directamente con una terraza cubierta con pérgola y la piscina privada de agua salada, creando un armonioso estilo de vida interior y exterior. La planta superior está dedicada exclusivamente a la suite principal. Este nivel privado ofrece un dormitorio en suite con acceso a una espectacular terraza de 40 m2 y unas impresionantes vistas panorámicas al mar y a la montaña, lo que garantiza la máxima privacidad y comodidad. La planta sótano cuenta con dos dormitorios adicionales con grandes ventanas que dan a un patio hundido de bonito diseño que llena el espacio de luz natural. Un baño compartido, un lavadero totalmente equipado con electrodomésticos Haier y dos amplios cuartos técnicos y de almacenamiento completan esta planta. Características premium y eficiencia energética La villa incluye acabados de alta calidad y sistemas avanzados, tales como: Cocina con isla central y electrodomésticos BOSCH integrados Encimeras de piedra natural en interiores y exteriores Ventanas panorámicas con vidrio reforzado con protección solar Sistema de aire acondicionado aerotérmico Mitsubishi Preinstalación de calefacción por suelo radiante Clasificación de eficiencia energética Clase A Preinstalación para sistema domótico Aparcamiento privado para dos vehículos El jardín mediterráneo con riego automático y un elegante patio en el nivel inferior mejoran la privacidad y la relajación. La azotea está preparada para la instalación de paneles solares. Excelente ubicación y distancias Centro de Polop a 2 km La Nucia a 4 km Playas de Benidorm a 12 km Altea a 10 km Villaitana Golf a 14 km Aeropuerto de Alicante a 65 km Descubra su refugio privado en Polop Esta moderna villa con vistas al mar ofrece diseño, privacidad y comodidad en uno de los entornos naturales más atractivos de la Costa Blanca. Póngase en contacto con nosotros hoy mismo para concertar una visita privada y asegurarse su nueva vivienda en La Alberca Polop.