3. Casa indepiende. Reventa Rojales. Alicante (South)

Ref: SLT-90334

249.000€

Vista general

3. Casa indepiende. Reventa Rojales. Alicante (South)

Ref: SLT-90334
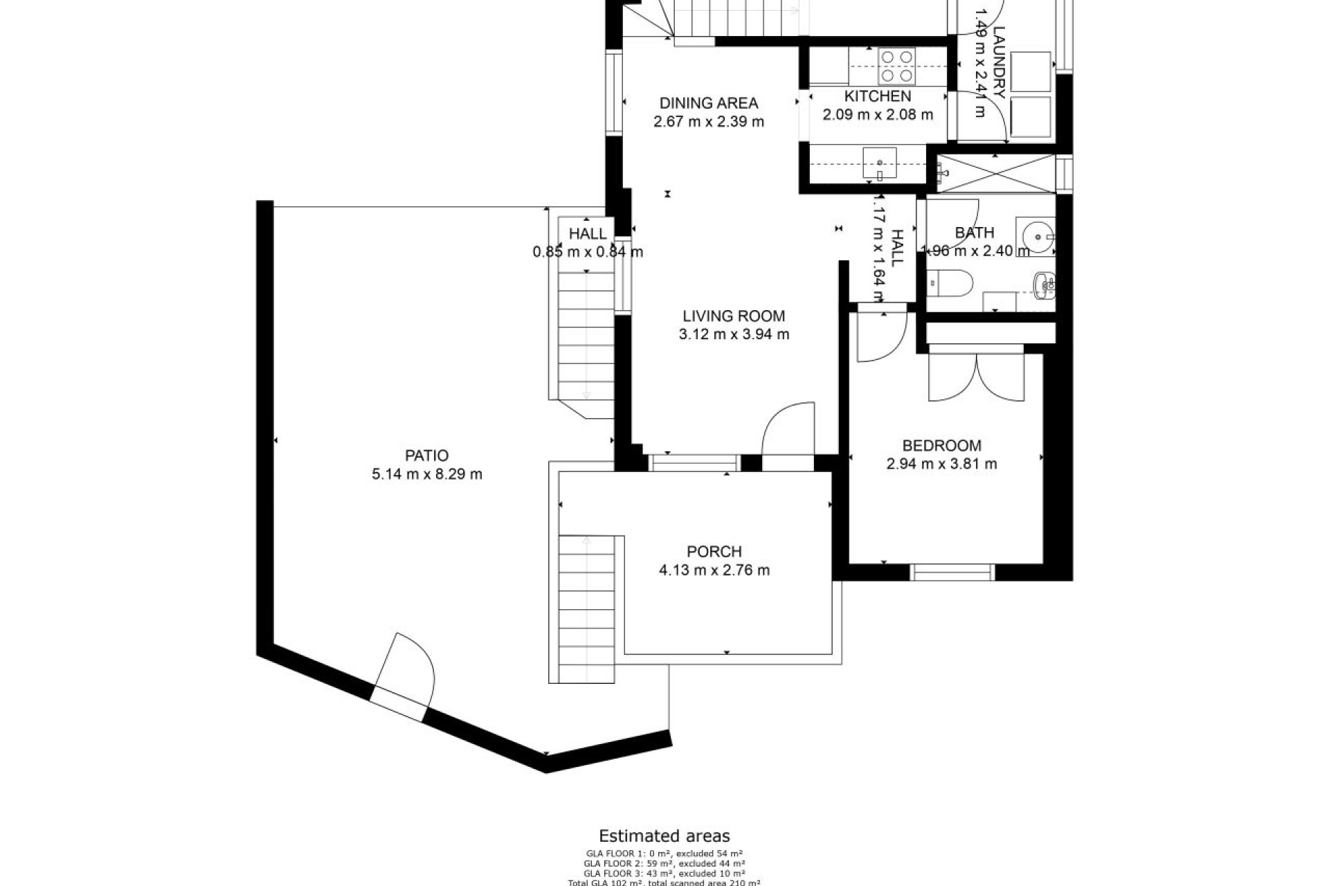
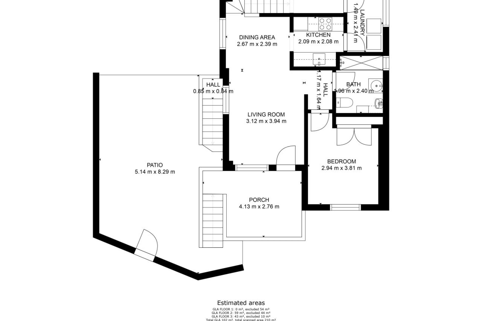
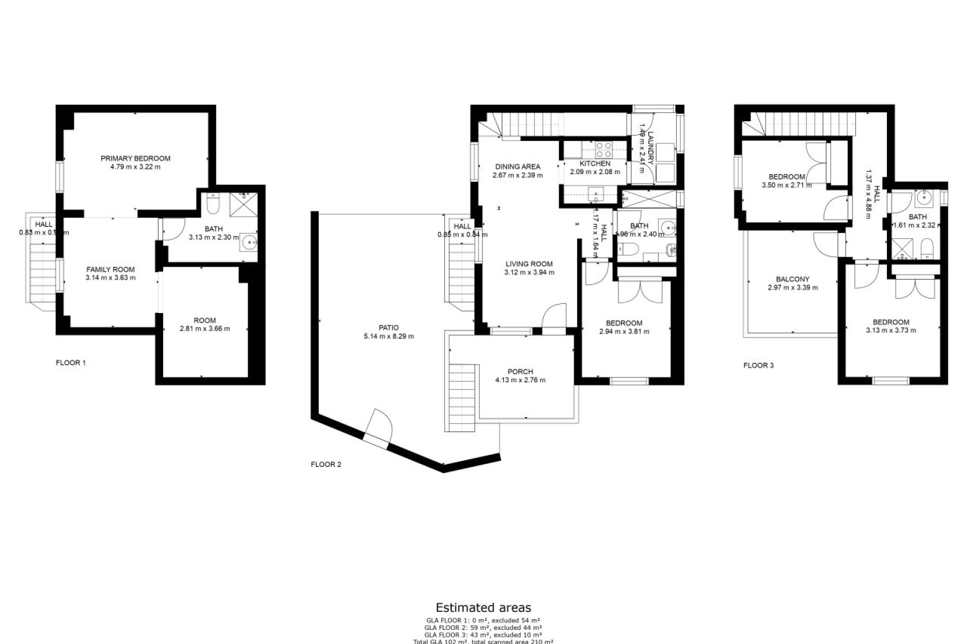
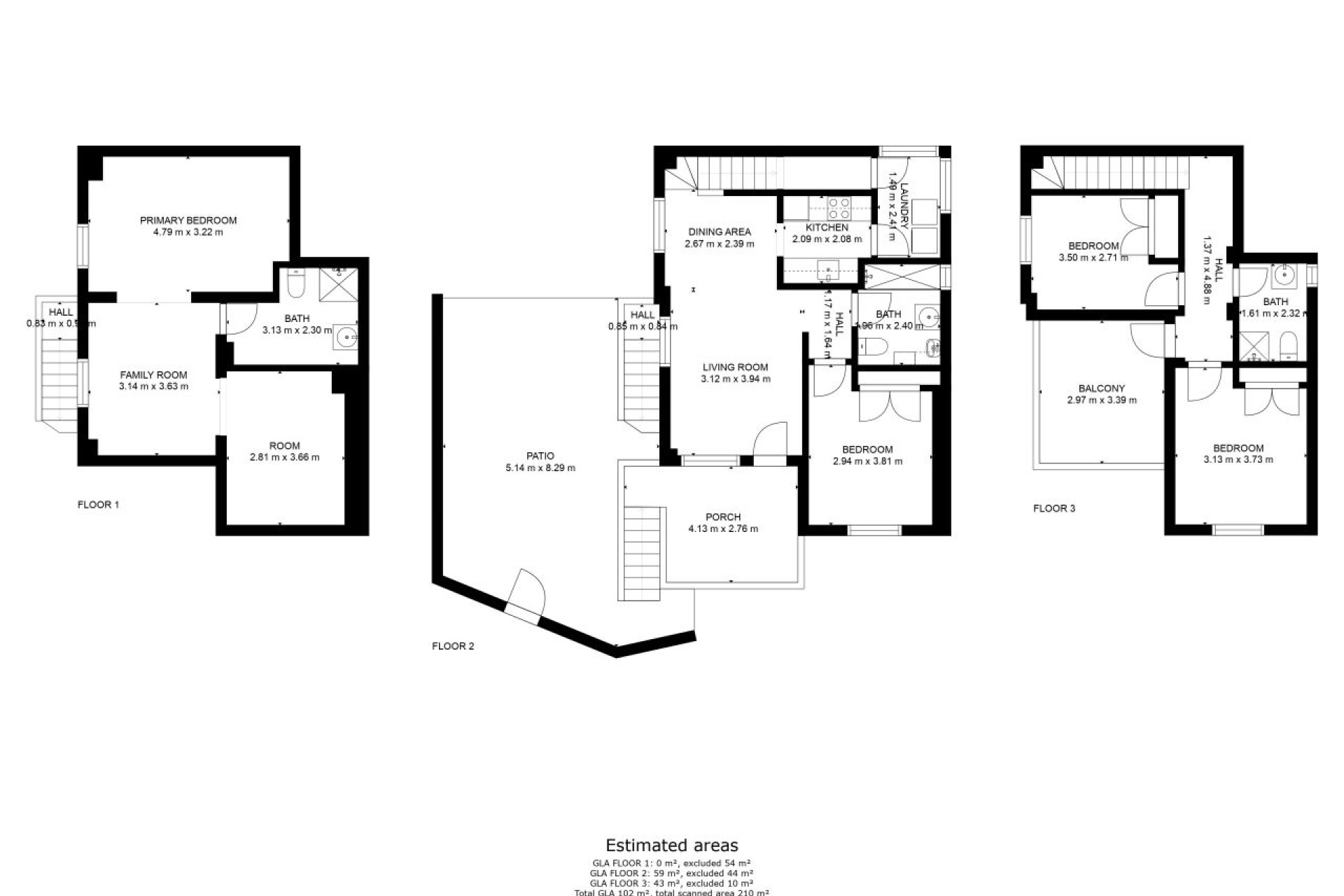
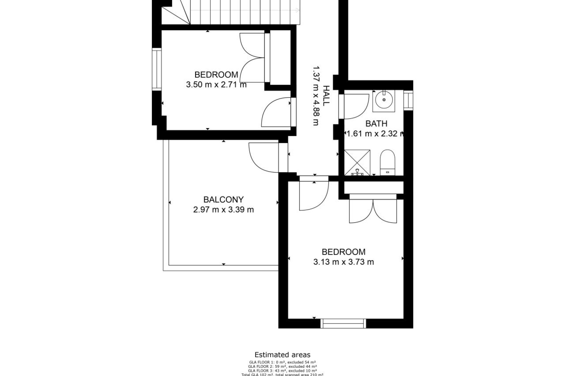
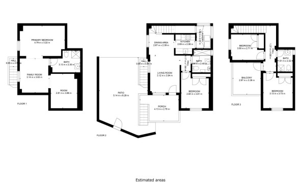
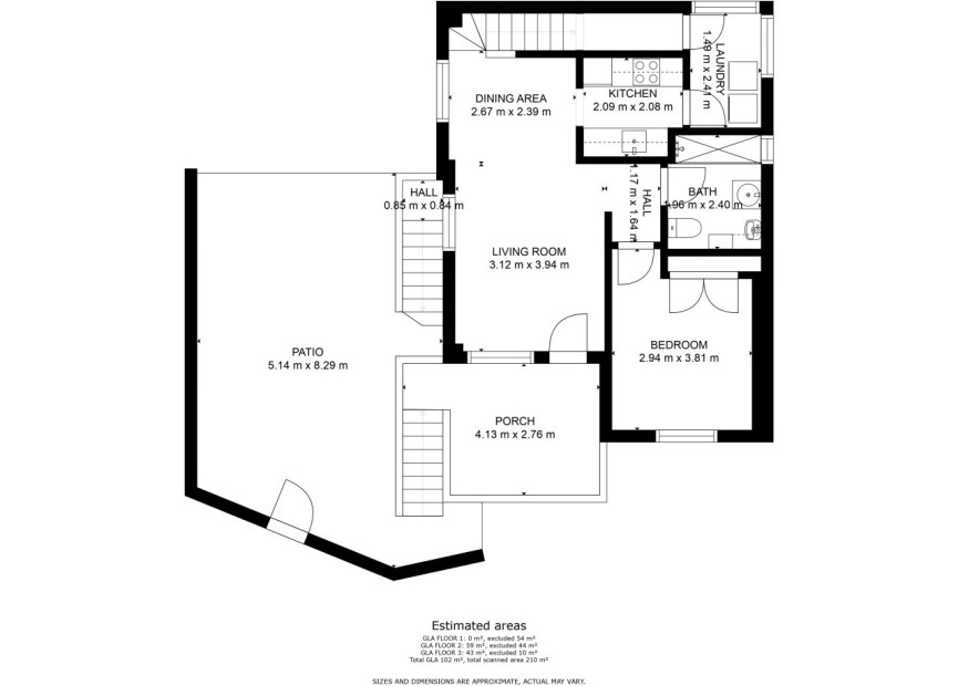
  • 160m2
  • 150m2
  • 5
  • 3
  •  
Habitaciones Habitaciones:

5

Baños Baños:

3

Construidos Construidos:

160m2

Parcela Parcela:

150m2

Piscina Piscina:

Privado

facing northeast
3 plantas
3 baños
5 dormitorios
2 livings
air-conditioning
Terrace
Balcón
Sótano
mediterranean style
coastal area
1 cuarto de servicio
1 ensuite
community pool
partly furnished
closed kitchen
tiled floor
split unit airco
covered terrace
split system heating
split system airco
2 cocinas
staircase
fully fenced
off-road parking
watersystem
Construido en 1999

Información requerida

Verantwoordelijk voor de behandeling: GSMakelaars, Doel van de behandeling: Beheer en controle van de diensten die worden aangeboden via de Real Estate Services-website, het verzenden van informatie via nieuwsbrieven en andere, Legitimatie: Met toestemming, Ontvangers: De gegevens worden niet overgedragen, behalve om de boekhouding voor te bereiden, Rechten van belanghebbenden: Gegevens inzien, corrigeren en verwijderen, gegevensportabiliteit aanvragen, zich tegen de verwerking verzetten en de beperking ervan aanvragen, Herkomst van gegevens: De belanghebbende zelf,, Extra informatie: Aanvullende en gedetailleerde informatie over gegevensbescherming kan worden geraadpleegd Hier.
WhatsApp