1
1
40m2
Privado
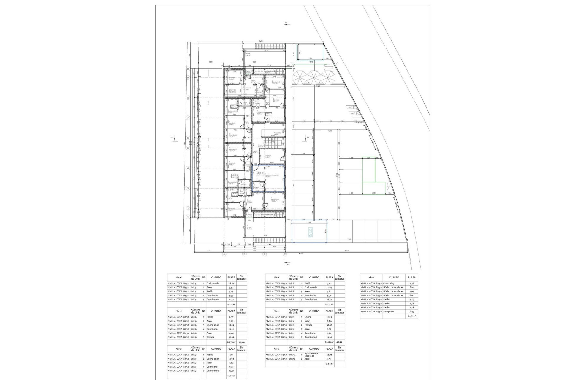
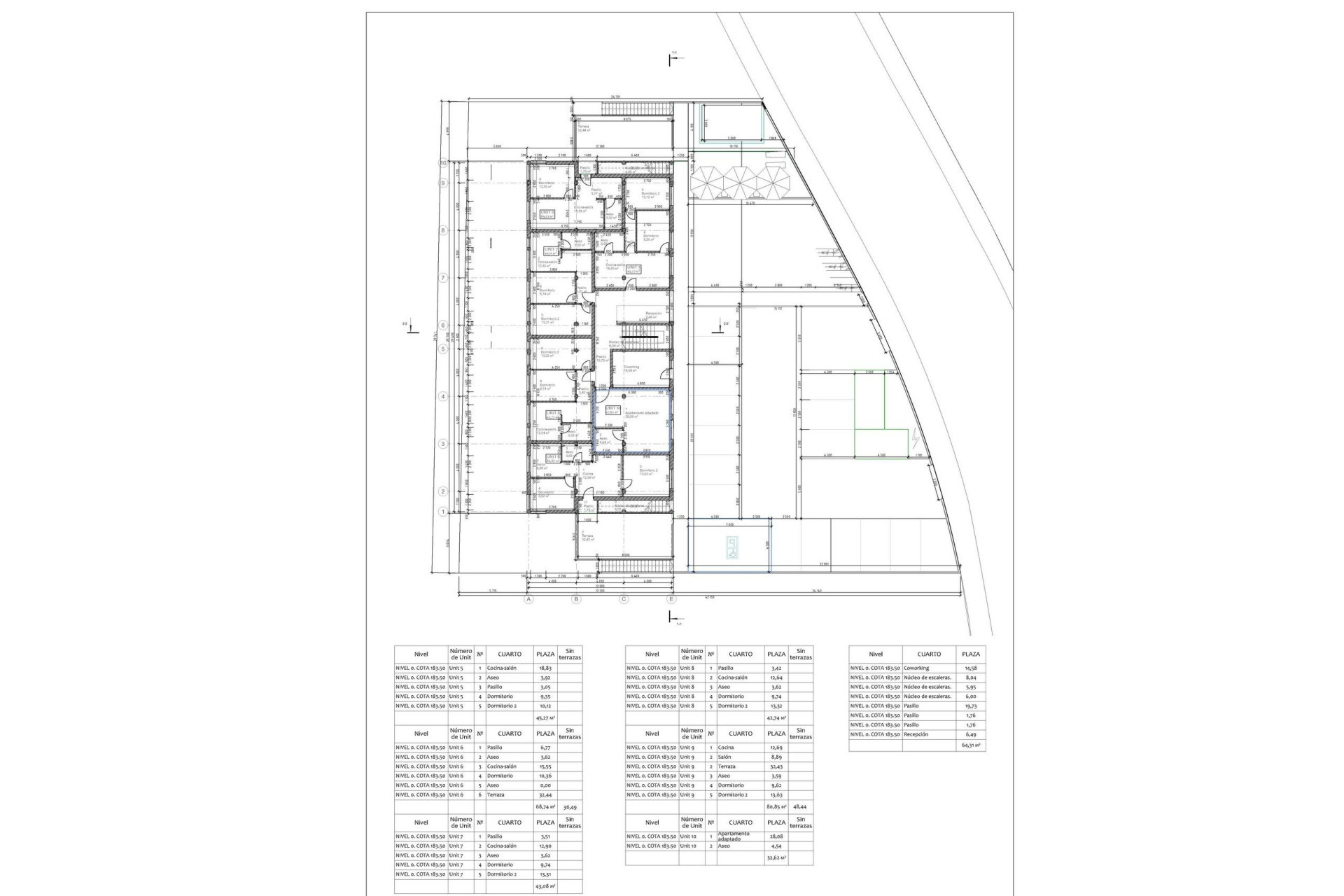
Apartamentos de nueva construcción con licencia turística en Finestrat: oportunidad de inversión cerca del campo de golf y de Benidorm Apartamentos exclusivos para inversión en Finestrat-Costa Blanca Descubra esta atractiva promoción de 18 apartamentos con licencia turística completa en una de las zonas más cotizadas de la Costa Blanca. Situado junto al campo de golf Puig Campana en Finestrat, este complejo residencial en una zona elevada disfruta de unas espectaculares vistas panorámicas tanto del mar Mediterráneo como de las montañas circundantes. A solo 4 km de las playas de Benidorm y cerca del encantador pueblo de Finestrat, la ubicación ofrece la combinación perfecta de tranquilidad, accesibilidad y una fuerte demanda de alquiler. Finestrat es una zona muy codiciada, conocida por su belleza natural, su excelente infraestructura y su proximidad a los principales destinos de ocio. El pueblo conserva su encanto tradicional español, mientras que la costa cercana ofrece una animada vida nocturna, playas, tiendas y entretenimiento. Apartamentos modernos con vistas al mar y a la montaña La promoción consta de 12 apartamentos con hermosas vistas al mar y 6 apartamentos con vistas despejadas a la montaña. Los compradores pueden elegir entre unidades en planta baja y en planta alta en un edificio de baja altura sin ascensor. Hay diferentes distribuciones disponibles, incluyendo apartamentos tipo estudio y propiedades de 1 o 2 dormitorios, todos con 1 cuarto de baño. Algunos apartamentos incluyen terrazas privadas, ideales para disfrutar del clima mediterráneo y de las vistas panorámicas de los alrededores, mientras que otros ofrecen distribuciones interiores eficientes diseñadas para la comodidad y la practicidad. Acabados de alta calidad y vida confortable Cada apartamento se entrega con especificaciones de alta calidad y acabados modernos, incluyendo aire acondicionado multisplit, sistema aerotérmico de agua caliente, cocina amueblada y baños totalmente equipados con mueble de lavabo, espejo, calefacción por suelo radiante y mampara de ducha. Para mayor comodidad, el promotor también ofrece un paquete de mobiliario opcional a un precio fijo, lo que permite que la vivienda esté lista para su uso inmediato o para alquilarla. Servicios estilo resort y gestión de alquileres Los residentes y huéspedes pueden disfrutar de excelentes instalaciones comunes, que incluyen una piscina, una zona de solárium común y una zona de juegos para niños. También hay plazas de aparcamiento exteriores opcionales disponibles con un coste adicional. Se trata de un producto de inversión turística gestionado profesionalmente. Toda la promoción será gestionada por una única empresa de gestión, lo que generará ingresos por alquiler para los propietarios al tiempo que permite el uso personal durante un máximo de 4 meses al año. Al tratarse de una propiedad de inversión con licencia turística, el IVA es deducible, lo que supone una ventaja financiera significativa y reduce los costes de adquisición. Excelente ubicación y distancias clave Golf Puig Campana 0,3 km Centro comercial La Marina 2 km Playas de Benidorm 4 km Pueblo de Finestrat 3 km Puerto de Benidorm 5 km Aeropuerto de Alicante 55 km Colegio 0,1 km Asegúrese una inversión de alto rendimiento en la Costa Blanca Tanto si busca una inversión rentable, un refugio vacacional o ambas cosas, estos apartamentos turísticos en Finestrat ofrecen un valor y una ubicación excepcionales. Póngase en contacto con nosotros hoy mismo para obtener más información o concertar una visita y asegurarse su propiedad de inversión en la Costa Blanca.