3
3
143m2
300m2
Privado
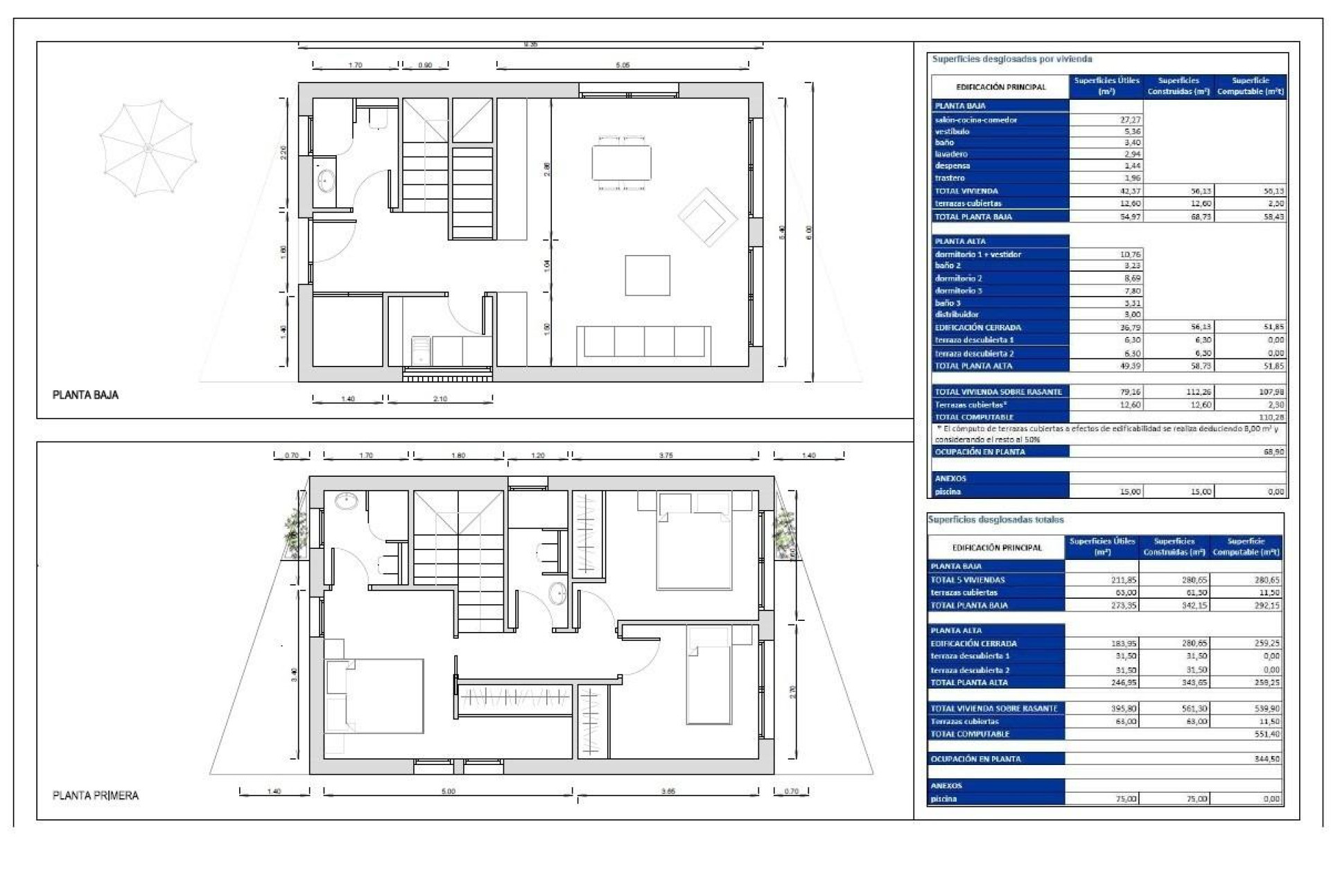
Villas modernas de nueva construcción en Finestrat con piscina privada cerca de Benidorm Ubicación privilegiada en Finestrat-Costa Blanca Descubra esta exclusiva promoción de tan solo 5 villas contemporáneas situadas en Finestrat, una de las zonas residenciales más codiciadas de la Costa Blanca. Con una ubicación perfecta entre el encantador pueblo de Finestrat y la animada ciudad de Benidorm, estas viviendas ofrecen un entorno tranquilo rodeado de naturaleza, sin dejar de estar cerca de todos los servicios. La zona es conocida por sus impresionantes vistas al mar Mediterráneo y a las montañas circundantes, así como por su proximidad a campos de golf, centros comerciales e instalaciones de ocio. Finestrat combina el encanto tradicional español con una infraestructura moderna, lo que la convierte en un lugar ideal tanto para residencias permanentes como para viviendas vacacionales. Su ubicación elevada garantiza vistas despejadas y una sensación de privacidad, mientras que la costa se encuentra a solo unos minutos en coche. Villas contemporáneas diseñadas para el confort y el estilo Estas elegantes villas presentan un diseño moderno y minimalista con líneas limpias, grandes ventanas panorámicas y amplias terrazas privadas. Cada propiedad se distribuye en dos plantas y ofrece 3 dormitorios y 3 baños, incluido un dormitorio principal con vestidor y acceso a una terraza privada. Un vestidor adicional proporciona mayor comodidad y espacio de almacenamiento. La distribución diáfana potencia la luz natural y crea una conexión fluida entre los espacios interiores y exteriores, perfecta para disfrutar del estilo de vida mediterráneo durante todo el año. Espacios exteriores privados y prestaciones de primera calidad Cada villa se encuentra en una parcela privada ajardinada e incluye una piscina privada, ideal para relajarse y recibir invitados. Las propiedades también ofrecen aparcamiento privado para dos vehículos dentro de la parcela. Los acabados de alta calidad y las instalaciones modernas garantizan el máximo confort y eficiencia energética. Las características incluyen sistemas aerotérmicos de agua caliente, unidades de aire acondicionado split con control individual en cada habitación e iluminación de diseño tanto interior como exterior. La cocina viene totalmente amueblada y equipada con placa vitrocerámica, campana extractora y horno. Viviendas energéticamente eficientes con tecnología moderna Construidas con materiales de primera calidad y con una calificación energética A, estas villas están diseñadas para reducir el consumo energético sin renunciar a un alto nivel de confort. La combinación de aislamiento, sistemas eficientes y construcción de calidad garantiza una vivienda sostenible y rentable. Excelente conectividad y puntos de interés cercanos Playas de Benidorm a 5 km Pueblo de Finestrat a 3 km Golf Puig Campana a 2 km Centro comercial La Marina a 4 km Puerto de Benidorm a 6 km Aeropuerto de Alicante a 55 km Tu hogar mediterráneo ideal te espera Tanto si buscas una residencia permanente con estilo, un refugio vacacional o una inversión inteligente, estas modernas villas en Finestrat ofrecen ubicación, calidad y estilo de vida en un solo paquete. Ponte en contacto con nosotros hoy mismo para recibir más información o concertar una visita y asegurarte tu nuevo hogar en la Costa Blanca.