4
3
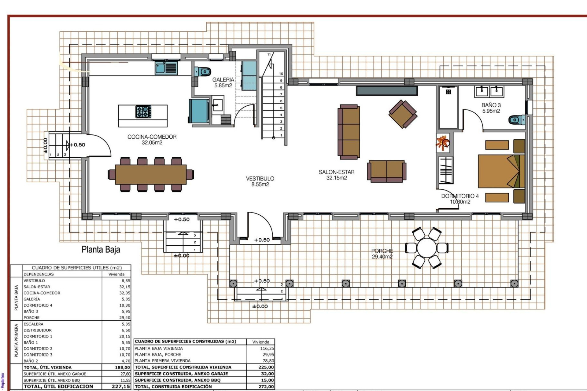
225m2
10.000m2
Privado
VILLAS DE OBRA NUEVA EN PINOSO Puede elegir villas con toques tradicionales españoles o acabados super modernos, luminosos y limpios. Diferentes parcelas legales disponibles (rústicas con un mínimo de 10.000 m2), algunas a poca distancia de la ciudad, algunas totalmente privadas y las más populares están a 5-10 minutos en coche de una ciudad. Tenemos una parcela para cada gusto, todas con vistas impresionantes y todas tienen agua de red + electricidad incluida en el precio e internet de alta velocidad disponible. Del mayor y mejor constructor de la zona y utilizamos materiales de primera calidad para un acabado perfecto. Todas las casas incluyen terraza de hormigón estampado de 2m alrededor de la piscina (color y patrón a elegir), 1m alrededor de la casa, entrada cerrada, vallado de 3.000 m2, preinstalación de aire acondicionado por conductos, cocina estándar, puerta de seguridad, ventanas oscilobatientes alemanas (o correderas si se prefiere), chimenea empotrada, preinstalación de televisión e internet, camino de grava más unos metros alrededor de la casa, fosa séptica. Los baños incluyen columna de ducha, plato de ducha o bañera, muebles de lavabo (varios colores a elegir) con fregaderos, grifos y espejos, además de una gran selección de azulejos de pared. Amplia selección de baldosas cerámicas para el suelo, de distintos colores, efecto madera, etc. Las cocinas incluyen armarios con puertas y tiradores estándar, según planos facilitados, fregadero y grifo de acero inoxidable, preinstalación para horno, lavavajillas, extractor. Varias encimeras de granito a elegir incluidas en el presupuesto, otras encimeras de piedra disponibles como extras. Electrodomésticos no incluidos. Escalera de mármol (crema, blanco o gris) y barandillas incluidas, más barandillas para el porche delantero. Gran ventana fija de cristal en la escalera para más luz. Elección de los azulejos y del diseño de los escalones de la piscina. Elección del granito para los escalones exteriores de la casa y los silos de las ventanas. Puede personalizar la casa a su gusto, la mayoría de los cambios internos son gratuitos, las casas se pueden ampliar e incluso podemos construir su propio diseño. Puede ampliar su casa con una piscina más grande, garaje individual o doble, casa de invitados, etc., con un coste adicional. La hermosa y próspera ciudad de Pinoso es de aproximadamente 45 minutos hacia el interior de Alicante y las playas de arena blanca de la Costa Blanca y cerca de la frontera de Murcia, Alicante. Tiene una población de poco menos de 8.000 habitantes. Pinoso, también conocido como El Pinos debe su nombre a los pinos que cubren las sierras de la zona. Pinoso ofrece un estilo de vida rural español, sin semáforos, casi sin tráfico, prácticamente los únicos atascos son causados por los tractores que llevan las uvas a la Bodega. Los campos están plantados de viñas, almendros y olivos. En febrero los campos se llenan de almendros en flor de color rosa. Pinoso tiene muchos bares, restaurantes y tiendas, un nuevo centro médico 24 horas, dentistas, dos escuelas primarias y 1 secundaria, un teatro. Hay un excelente centro deportivo con piscinas al aire libre, pistas de tenis, campos de fútbol y gimnasio, biblioteca y muchas otras instalaciones, incluyendo una hermosa zona de picnic entre los pinos, con barbacoas, zonas de estar y agua corriente.