3
3
314m2
271m2
Privado
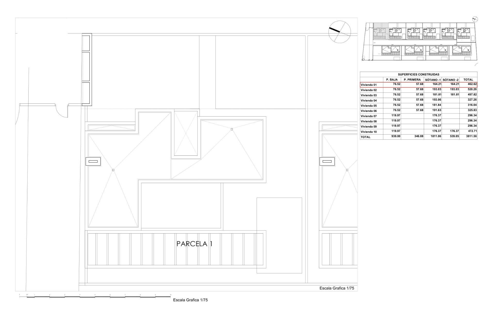
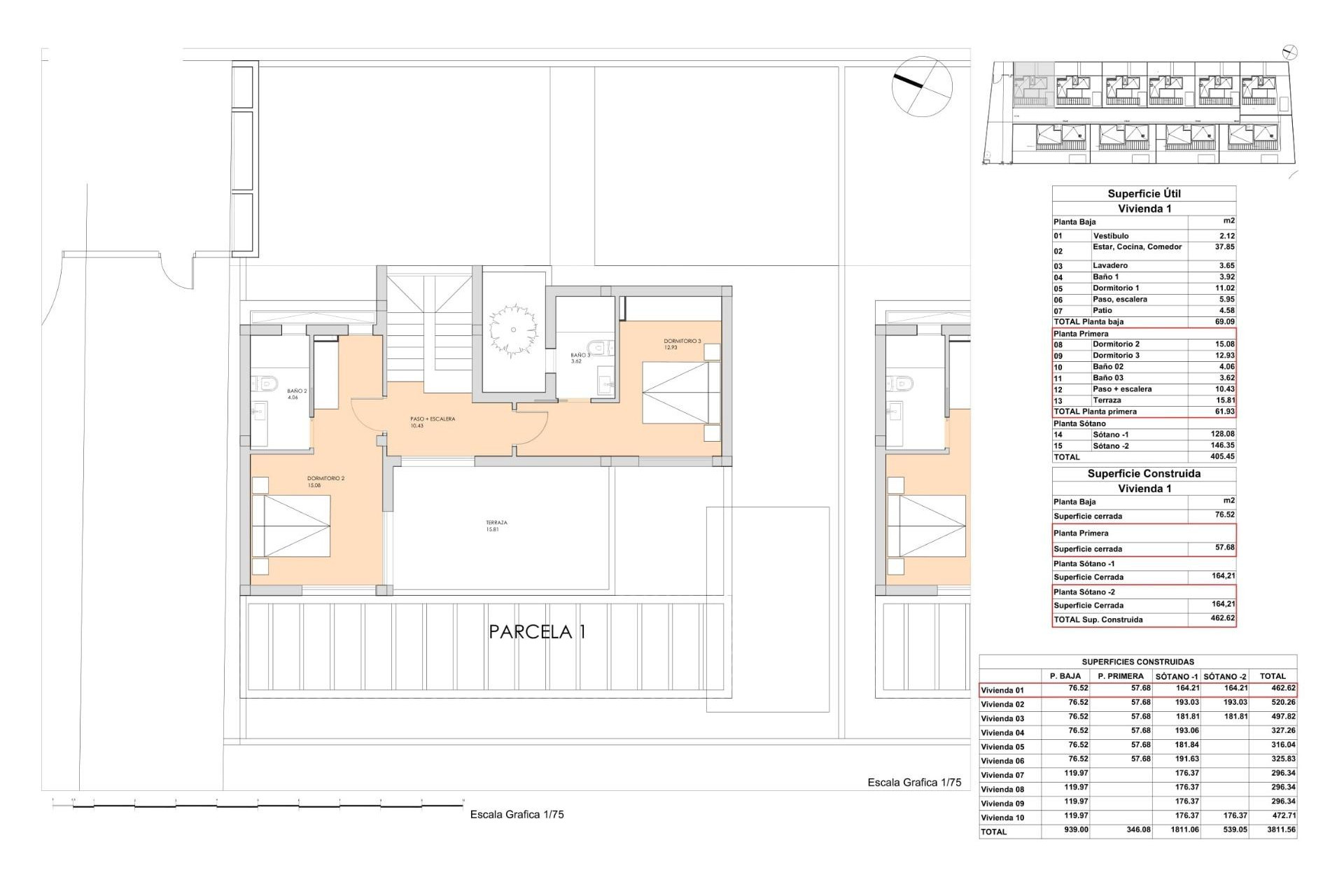
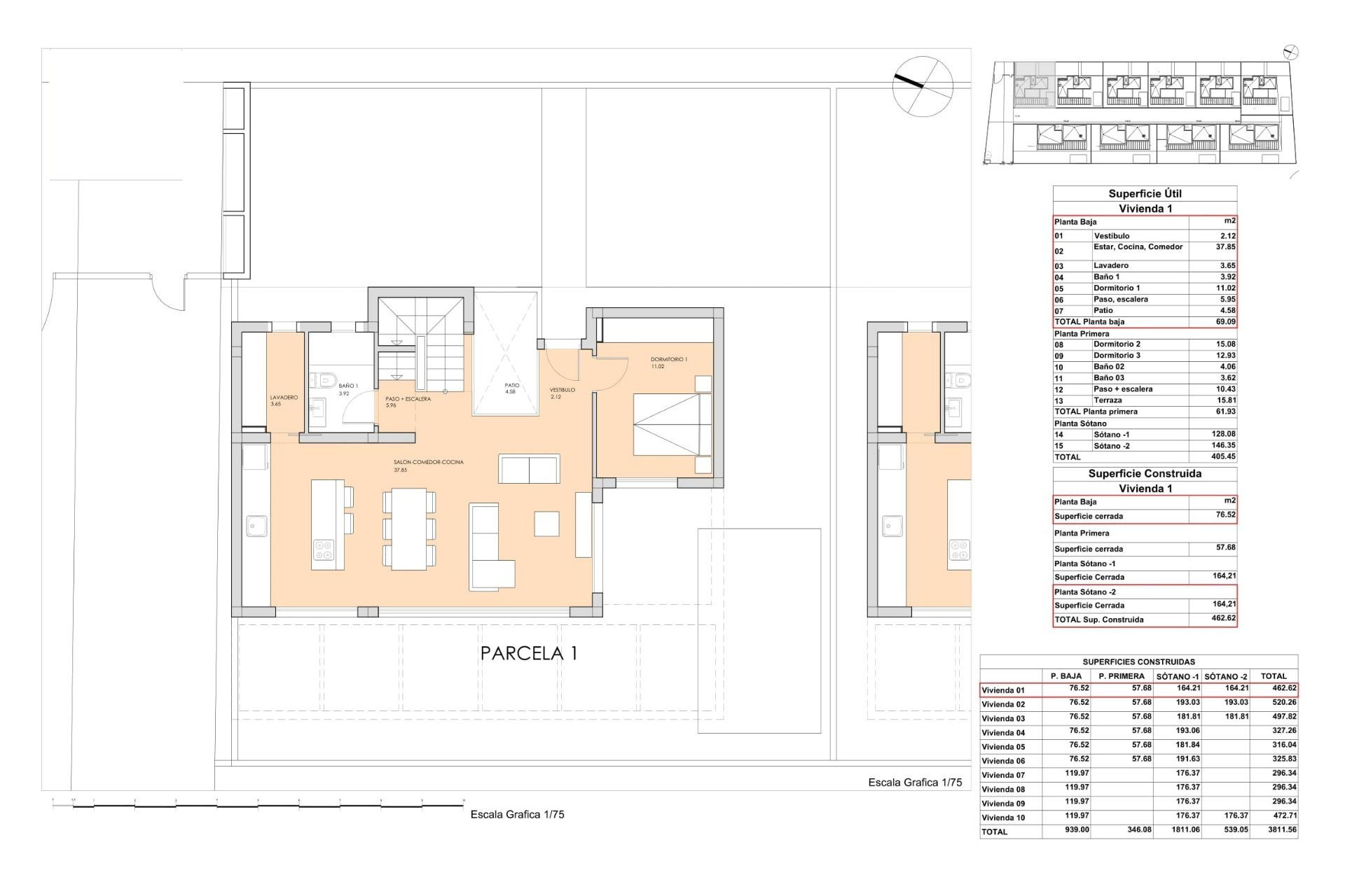
VILLAS DE OBRA NUEVA EN FINESTRAT Proyecto de obra nueva de 10 villas de diseño moderno, en un entorno natural con vistas al mar y a la montaña, cerca del campo de golf Puig Campana, y a poca distancia de las localidades de Finestrat y Benidorm. El proyecto se dividirá en dos fases de construcción, que a su vez incluyen dos tipos de viviendas, de 1 ó 2 plantas, 3 dormitorios dobles, 2 ó 3 baños completos, salón-comedor con cocina integrada, lavadero, amplia terraza y jardín, piscina privada, parking exterior, 1 ó 2 sótanos polivalentes y en algunos modelos garaje subterráneo cerrado. Posibilidad de solarium con coste adicional. Villas construidas con las mejores calidades y los últimos avances en construcción, entre otros - Barandillas de cristal que no rompen la continuidad de las vistas. - Solería de gres porcelánico de primera calidad. - Puerta de entrada blindada. - Carpintería exterior de aluminio con rotura de puente térmico y doble vidrio aislante de baja emisividad con cámara de aire y seguridad en zonas con riesgo de rotura. - Carpintería interior lisa, de madera lacada en blanco con tiradores y herrajes de acero inoxidable. - Armarios y vestidores correderos totalmente equipados. - Producción de agua caliente sanitaria mediante sistema de bomba de calor con depósito acumulador de 100L, con apoyo de placas solares en cubierta. - Instalación eléctrica de alta gama 9,2kw. - Instalación de aire acondicionado por conductos con máquinas incluidas. - Cocinas de diseño minimalista, totalmente equipadas con isla, muebles y electrodomésticos incluidos. - Piscina privada con iluminación y zona de playa con pavimento o césped artificial. - Sótano polivalente totalmente personalizable, según modelo con zona de garaje para un vehículo y preinstalación para vehículo eléctrico. Villas se encuentra en un entorno privilegiado de la Costa Blanca, en una zona elevada al pie de la sierra, rodeada de naturaleza y de otras urbanizaciones similares, con excelentes vistas al mar y sus alrededores. Muy bien comunicada por carretera con la cercana población de Finestrat, a 10 minutos en coche de los centros comerciales, la autopista A7, las playas y las cercanas poblaciones de Benidorm y Villajoyosa, y a 30 minutos de la ciudad de Alicante y su aeropuerto internacional.