2
2
81m2
101m2
Privado
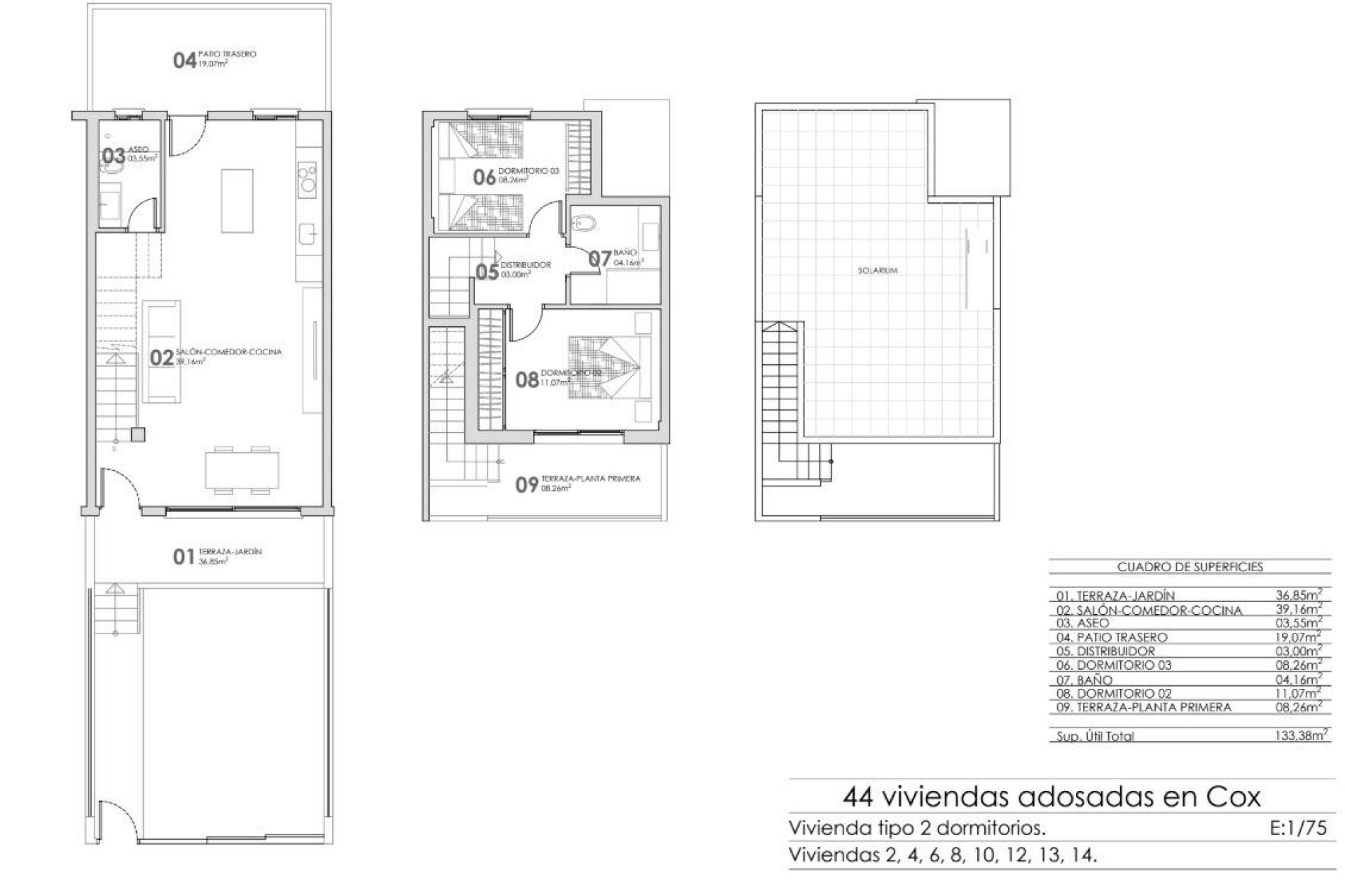
Adosados de obra nueva en venta en Cox - 44 casas modernas con grandes comodidades Descubra una nueva promoción residencial de 44 modernos adosados en Cox, Alicante. Estas casas están disponibles en 2 y 3 dormitorios, cada uno con un solarium privado, terrazas, patios y aparcamiento privado. La comunidad ofrece acceso a zonas comunes, incluyendo una piscina comunitaria, creando un ambiente ideal para relajarse. Ubicación privilegiada con excelente conectividad Esta urbanización se encuentra a sólo 40 km del Aeropuerto Internacional de Alicante, lo que hace que viajar sea fácil y cómodo. Cox está bien comunicado con las principales ciudades: Orihuela está a sólo 8 km, Elche a 20 km, Alicante a 48 km y Murcia a 25 km. Los aficionados al golf apreciarán los campos cercanos como La Finca (12 km) y Vistabella (14 km). Fácil acceso a las principales carreteras Cox ofrece fácil acceso a la autopista AP-7 y a la Autovía del Mediterráneo (A-7), así como a rutas locales a zonas circundantes como Granja de Rocamora y Callosa de Segura. La ciudad y sus alrededores cuentan con una población de más de 35.000 habitantes, ofreciendo un estilo de vida tranquilo pero vibrante. Servicios y atracciones locales Los residentes podrán disfrutar de una amplia gama de servicios locales, incluyendo tiendas, escuelas, instalaciones deportivas, centros médicos, y un rápido acceso a las playas de la Costa Blanca, como Guardamar del Segura y Torrevieja. Características incluidas Cada casa viene con un jardín, iluminación LED, persianas eléctricas, pre-instalación de paneles solares, armarios empotrados, una puerta de seguridad, una cocina totalmente equipada con encimeras de Silestone, y mucho más.