4
2
220m2
400m2
Privado
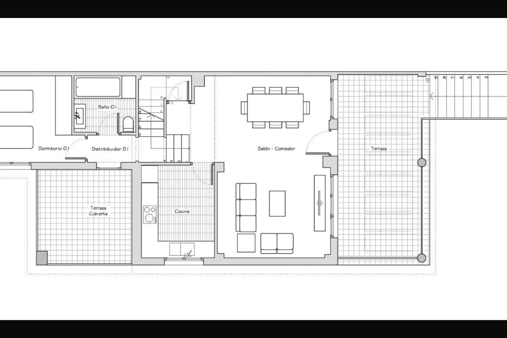
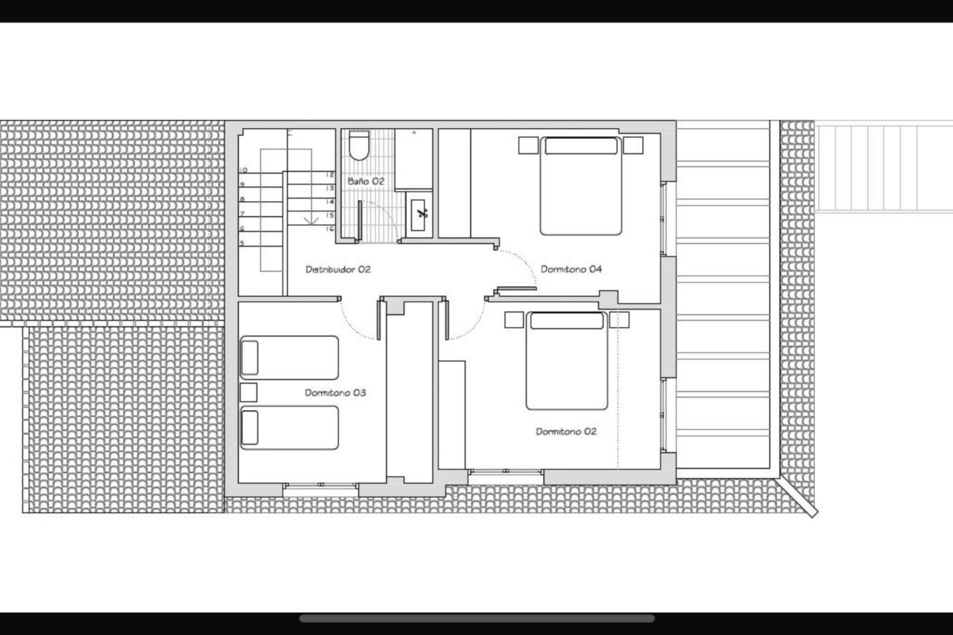
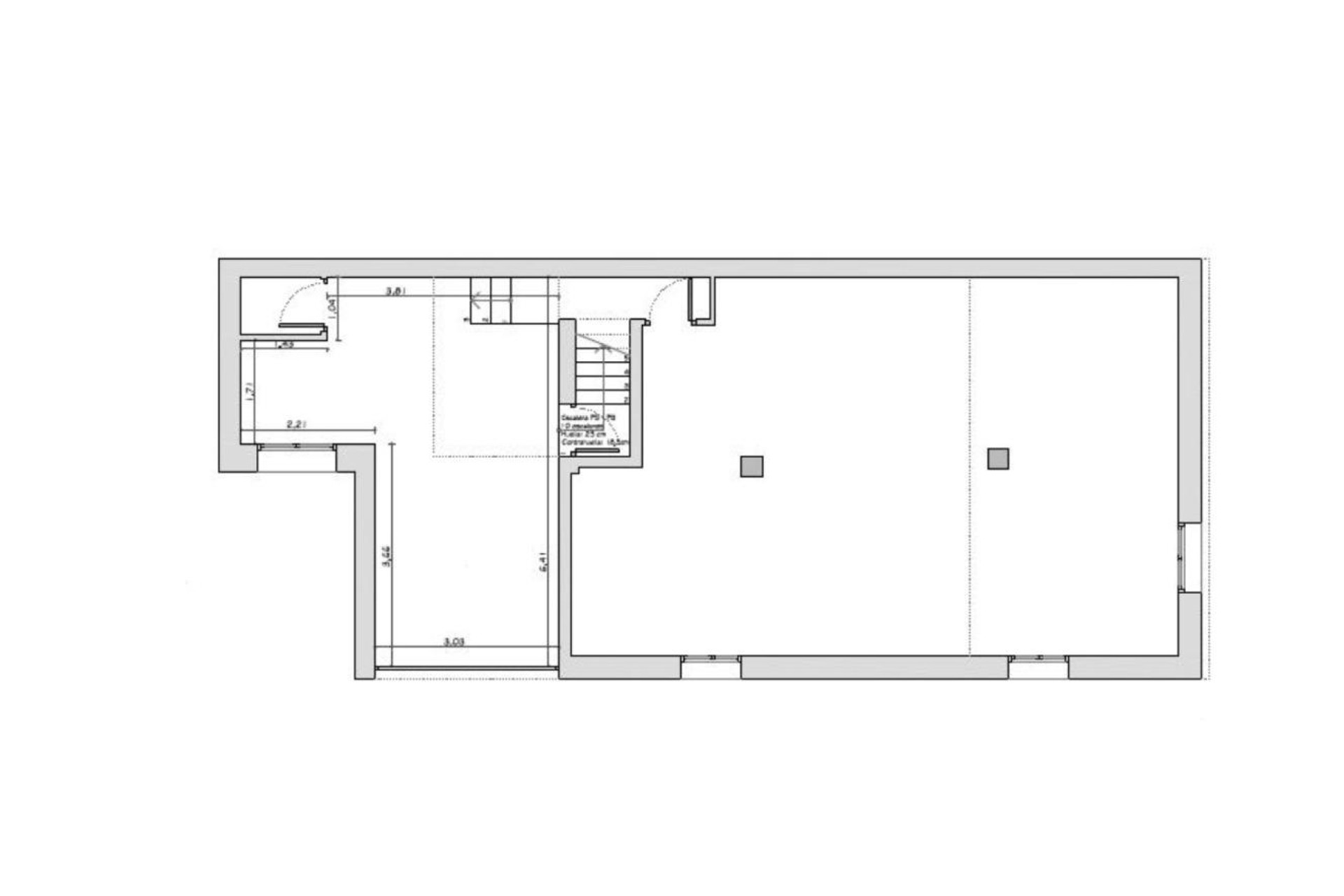
¡Oportunidad única!~Vive el sueño en esta villa de lujo en la prestigiosa urbanizacion AGUAS NUEVAS en Torrevieja, un lugar rodeado de servicios donde lo tendra todo a unos pocos minutos.~~Esta increíble vivienda cuenta con 4 amplios dormitorios y 2 baños, diseñados para tu comodidad.~Además, disfrutarás de una cocina independiente muy amplia para poder cocinar sin humos en el resto de la vivienda.~~El atractivo no acaba ahí: esta vivienda cuenta con mas de 200 metros cuadrados de vivienda con grandes espacios como garaje cerrado o un gran sala de para poder disfrutar como sala de juegos, cine, o bien una gran sala para hacer fiestas.~~¡No dejes pasar esta oportunidad! Contacta con nosotros para descubrir cómo esta apasionante villa de lujo que podría convertirse en tu nuevo hogar.~~¿Pensando en vender tu propiedad y adquirir este apartamento de ensueño? Nuestra agencia te ofrece una valoración gratuita, con más de 20 años de experiencia en el sector y los datos de ventas más actualizados. Te ayudaremos a conseguir una venta rápida y ventajosa para que puedas comenzar a disfrutar de la vida que siempre has querido junto al mar.~~¡Contáctanos ahora y da el primer paso hacia tu nueva vida en la Costa Blanca!~~“El precio del inmueble no incluye, ni los gastos de notaría y registro de la propiedad (que están sujetos a aranceles y varían dependiendo del precio de escrituración), ni los impuestos (que en la Comunidad Valenciana varían dependiendo del precio del inmueble y de las características personales del comprador)."