1
1
45m2
Privé
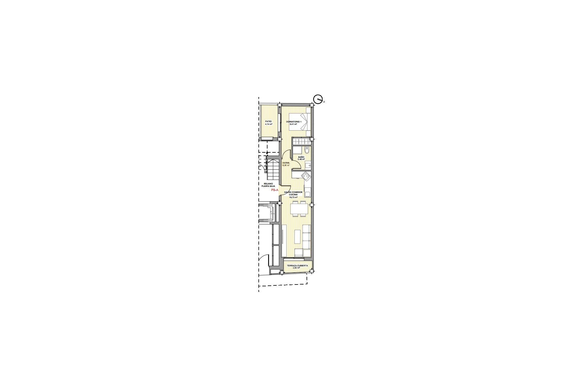
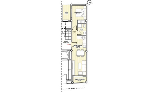
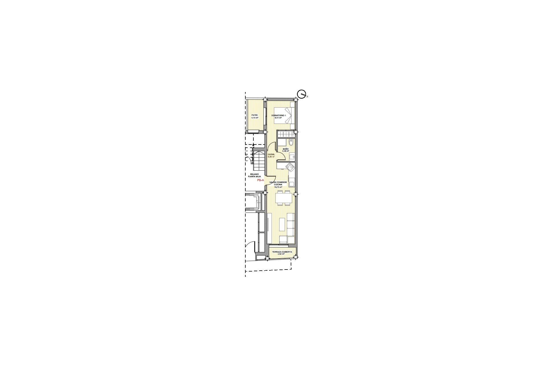
Moderne nieuwbouwappartementen in het centrum van Torrevieja – op slechts 600 m van de zee Ontdek dit exclusieve boetiekproject met slechts 8 moderne nieuwbouwappartementen, perfect gelegen in het hart van Torrevieja. Op slechts 600 m van Playa de Los Locos en 650 m van het beroemde Playa del Cura met zijn levendige boulevard, bieden deze woningen de ideale mix van wonen aan het strand en stedelijk comfort. Eigentijds design en slimme indelingen Kies tussen stijlvolle appartementen met 1 slaapkamer en 1 badkamer of ruime appartementen met 2 slaapkamers en 2 badkamers. Elke woning is ontworpen met een moderne, functionele indeling die natuurlijk licht en comfort maximaliseert. Hoogwaardige afwerkingen zorgen voor duurzaamheid en elegantie, waardoor deze woningen perfect zijn voor zowel permanent wonen als vakantieverblijven. Exclusieve voorzieningen Bewoners kunnen ontspannen in het gemeenschappelijke solarium op het dak of een duik nemen in het gedeelde zwembad op het dak, de perfecte plek om tot rust te komen na een dag op het strand. Tegen meerprijs zijn optionele opslagruimtes op het dak beschikbaar, voor extra gemak en veiligheid. Levendige levensstijl in Torrevieja Torrevieja is een levendige kuststad die bekend staat om zijn culturele en recreatieve activiteiten het hele jaar door. Met meer dan 300 dagen zon per jaar is de omgeving ideaal voor buitenactiviteiten, stranddagen, watersporten en avondwandelingen langs de kust. Alle essentiële voorzieningen, waaronder supermarkten, restaurants, cafés en uitgaansgelegenheden, liggen op loopafstand. Uitstekende ligging en verbindingen Deze centrale ligging biedt snelle toegang tot belangrijke bezienswaardigheden en voorzieningen: Playa de Los Locos: 600 m Playa del Cura: 650 m Jachthaven van Torrevieja: 2 km Winkelcentrum Zenia Boulevard: 8 km Golfbanen: 7-10 km Luchthaven Alicante: 45 km Uw mediterrane thuis wacht op u Of u nu op zoek bent naar een vakantiehuis, een investeringsobject of een permanente woning, deze moderne nieuwbouwappartementen in Torrevieja bieden de perfecte gelegenheid om te genieten van de mediterrane levensstijl op een toplocatie. Neem vandaag nog contact met ons op om een bezichtiging te regelen en uw plek in dit exclusieve kustproject te verzekeren.