2
1
75m2
Goed onderhouden en stijlvolle halfvrijstaande woning in het charmante Entre Golf, een van de meest gewaardeerde en rustige urbanisaties van Villamartín.
Gelegen in de rustige en besloten Bidasoa-straat, op loopafstand van restaurants, cafés, supermarkten en op korte rijafstand van het populaire Villamartin Plaza en La Fuente. Ook op korte rijafstand van verschillende golfbanen, waaronder Villamartin golf.
Licht en ruim
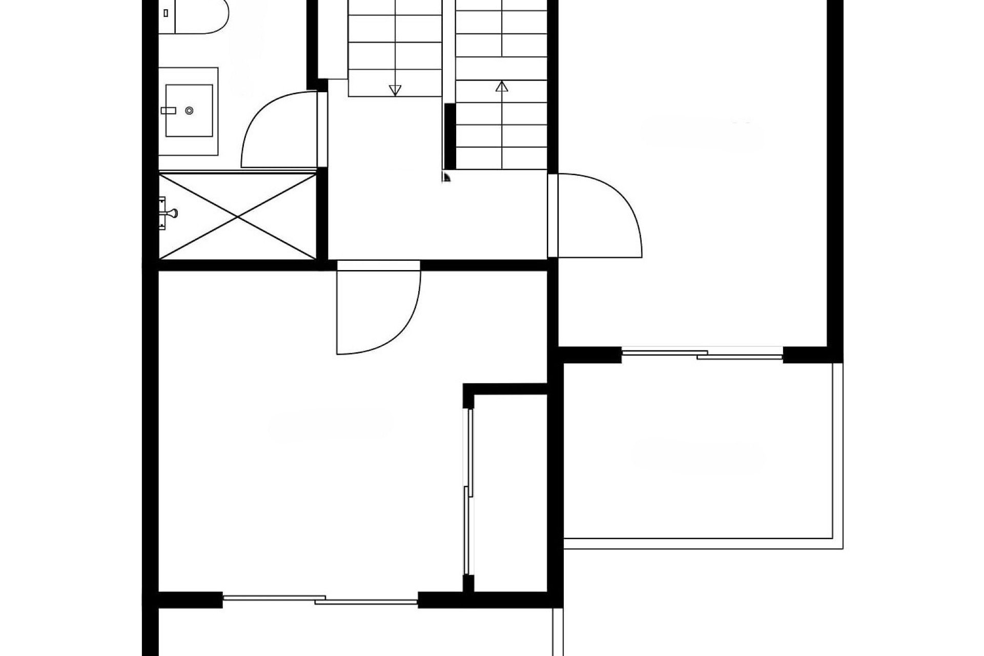
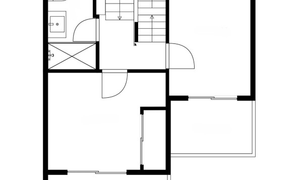
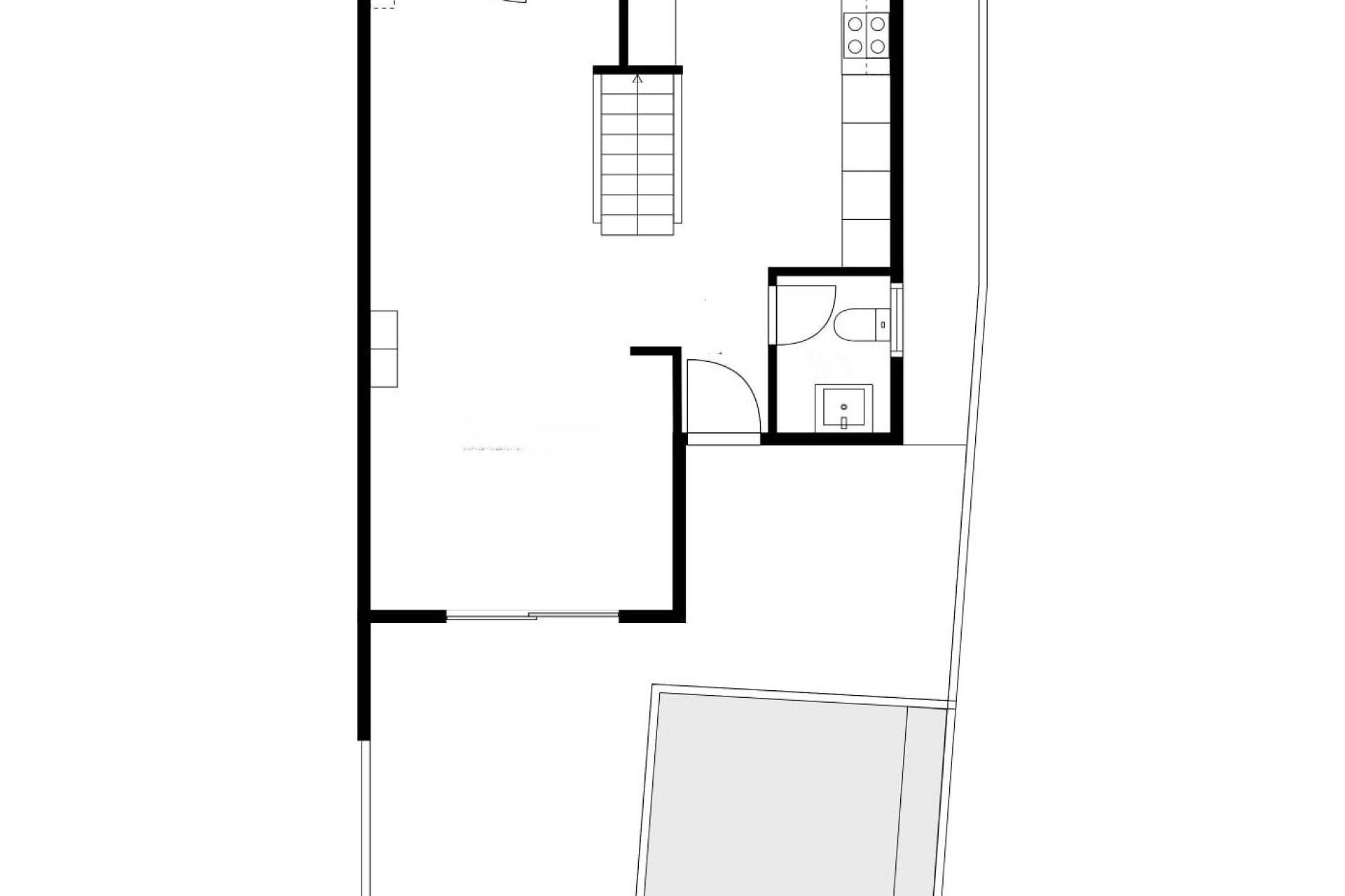
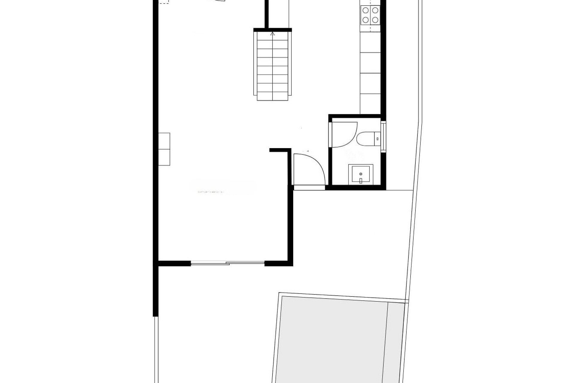
De lichte en grote woonkamer sluit naadloos aan op de open keuken en het zonnige terras op het zuiden. Ook is er een aparte toilet, ideaal voor gasten.
U heeft uw eigen privézwembad mét warmtepomp, een onderhoudsvriendelijke tuin en de mogelijkheid om op het perceel te parkeren.
Verschillende buren hebben ervoor gekozen om de eetkamer om te bouwen tot een extra slaapkamer – de mogelijkheden zijn talrijk.
Boven vindt u twee ruime tweepersoonsslaapkamers, beide met inbouwkasten en een eigen balkon – ideaal om uw ochtend te beginnen met een kopje koffie. De lichte, volledig betegelde badkamer is uitgerust met een ruime douche.
Op het solarium wacht u een prachtig dakterras met adembenemend uitzicht over de omgeving.
Instapklaar en gemeubileerd
Het appartement wordt verkocht met stijlvolle meubels, accessoires en praktische huishoudelijke artikelen – u hoeft alleen uw koffer mee te nemen en u kunt meteen gaan wonen.
Toplocatie in Villamartin - Los Altos
Los Altos staat bekend om zijn rustige sfeer, uitstekende voorzieningen en de nabijheid van stranden, winkels en restaurants. Een perfecte combinatie van ruimte, comfort en mediterrane charme.
Naast uw eigen privézwembad heeft u ook toegang tot het gemeenschappelijke zwembad van de urbanisatie, dat zich op slechts enkele meters verderop aan het einde van de straat bevindt. Het is zeer goed onderhouden, met echt gras, parasols en een petanquebaan.
Dit is een woning die zowel permanente bewoners als vakantiegangers aanspreekt, en wordt exclusief via ons verkocht. Neem vandaag nog contact met ons op om een bezichtiging van dit juweeltje op een toplocatie te regelen!