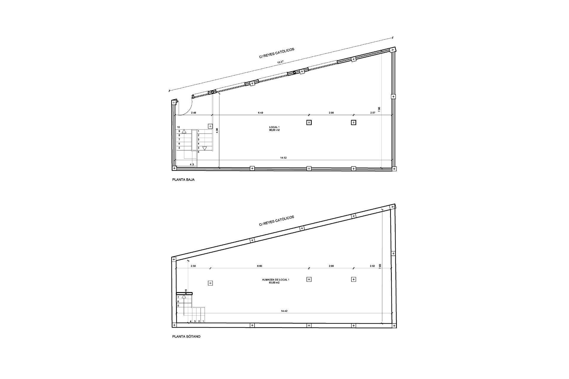
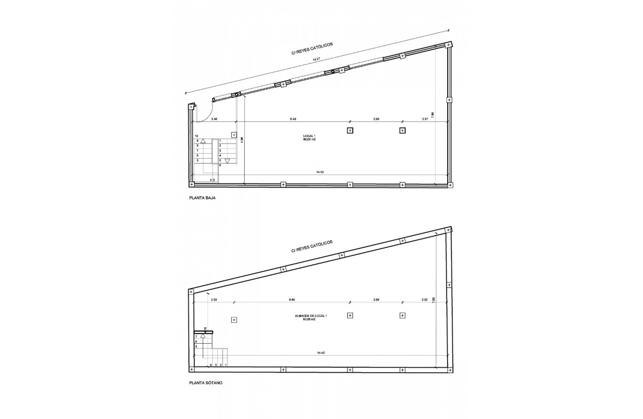
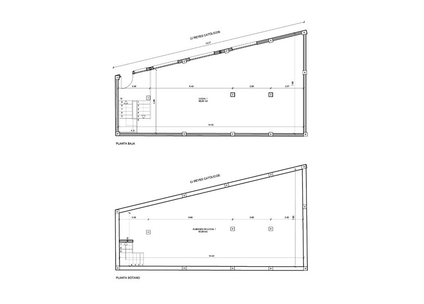
182m2
Brand new commercial unit for sale in Los Montesinos. It is sold as is, in basic form, ready for you to finish in the style exactly how you wish. There is also the possibility to convert this unit into a very spacious house to live in. The main entrance is slightly raised, and there are four large windows across the front of the unit, allowing for plenty of natural daylight. The main floor of the property is 97m2, which is a great size whether you intend for the use of it to be commercial or habitable. Just by the entrance are a set of stairs, which lead down into the semi-basement. The semi-basement has an area of 85m2, and can be used for storage, or also to carry on as part of the house if you wish for habitable use. There are slim line windows across the top part which allows natural daylight in, as you can see in the exterior photos. A property with lots of potential, regardless of the use you intend to apply!