Commercieel vastgoed. Herverkoop Los Montesinos. Alicante (South)

Ref: BC-13571

106.000€

Overzicht

Commercieel vastgoed. Herverkoop Los Montesinos. Alicante (South)

Ref: BC-13571
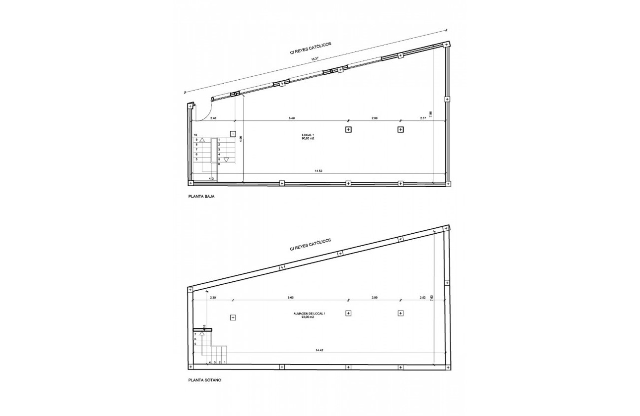
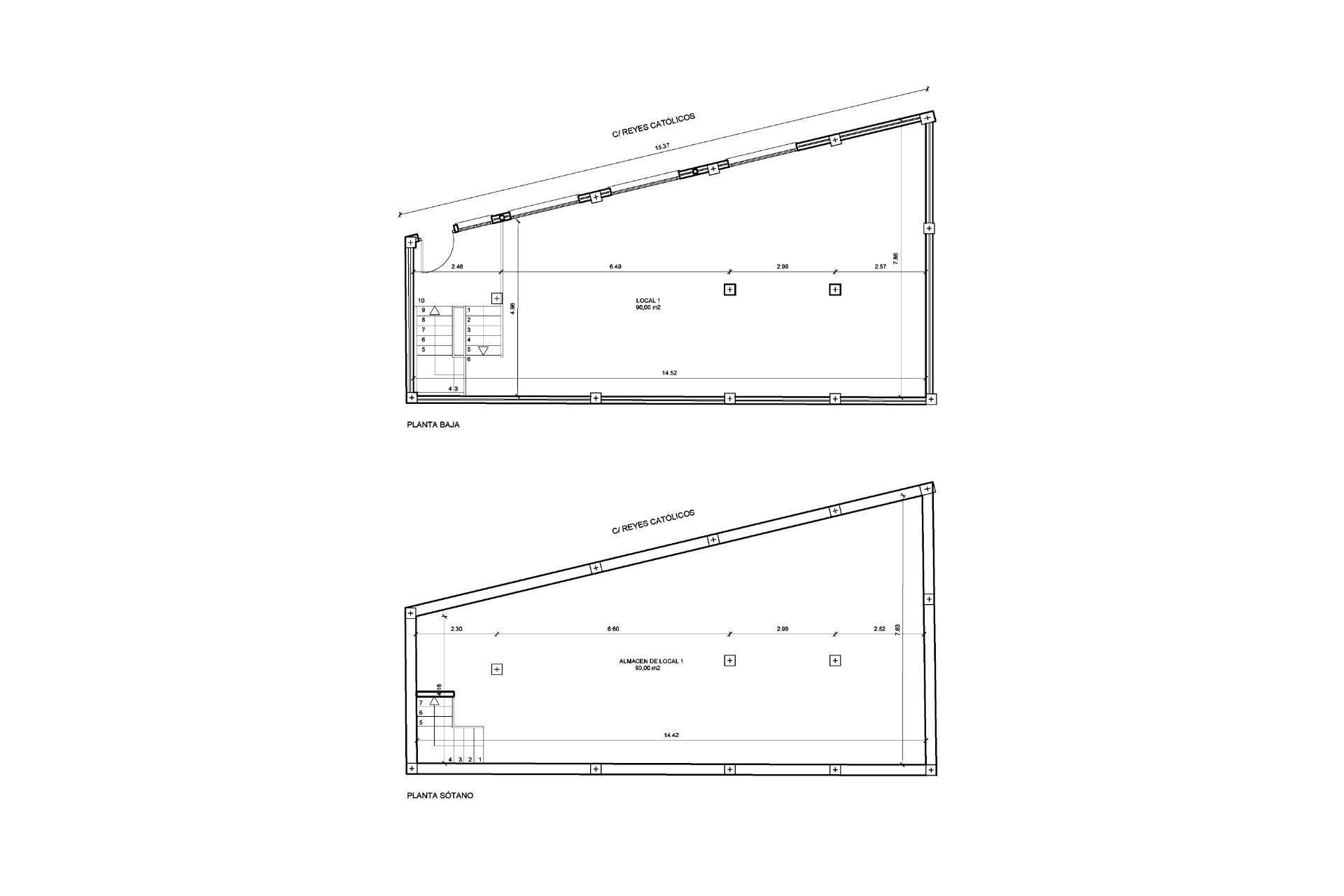
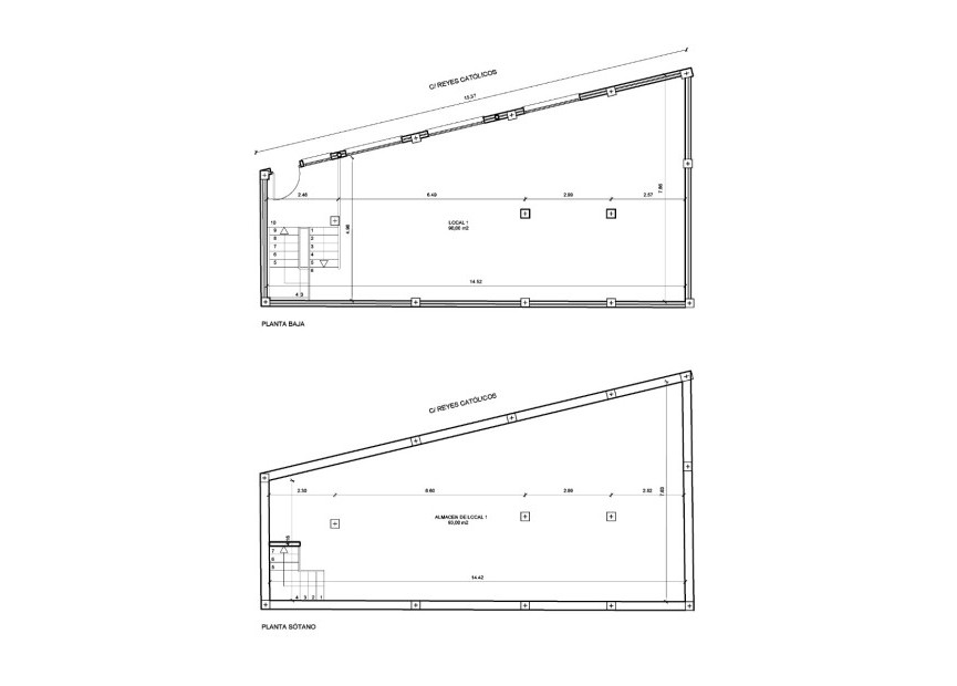
  • 182m2
Totaal oppervlakte Totaal oppervlakte:

182m2

Storage room
Unfurnished

Omschrijving



Kaart

Info aanvragen

Verantwoordelijk voor de behandeling: GSMakelaars, Doel van de behandeling: Beheer en controle van de diensten die worden aangeboden via de Real Estate Services-website, het verzenden van informatie via nieuwsbrieven en andere, Legitimatie: Met toestemming, Ontvangers: De gegevens worden niet overgedragen, behalve om de boekhouding voor te bereiden, Rechten van belanghebbenden: Gegevens inzien, corrigeren en verwijderen, gegevensportabiliteit aanvragen, zich tegen de verwerking verzetten en de beperking ervan aanvragen, Herkomst van gegevens: De belanghebbende zelf,, Extra informatie: Aanvullende en gedetailleerde informatie over gegevensbescherming kan worden geraadpleegd Hier.
WhatsApp